Choose your language: ES | PT | EN
Iberê Camargo Foundation: Standards and Variations
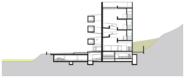
It could have been a rectangular prism whose length measures forty-one meters and a half, whose width measures thirty-three meters, and whose height measures twenty-five meters. It could have been, if the projection had ended in the trace of a pure rule. It could have been almost the same: three elevated plans, each formed by three rectangular exhibitions rooms, placed at two consecutive faces and connected by ramps that run on the two other faces. Then, a four-story-high atrium rises between circulations and rooms, creating a diagonal symmetry inside the building.
But the building is not just a rule. It is mainly the materialization of a set of variations. The ramps of the prime rule, with an extension of forty-nine meters and fifty-eight centimeters divided into two perpendicular segments on each level, would need either a slope of eleven and a tenth percent or an increase of thirteen meters and thirty-nine centimeters in its extension with a slope of eight point seventy-three percent in order to achieve the five meters and a half difference between floors. So the obvious choice, which implies a first set of spatial-formal variations on the building, is for the increase in the extent of the ramp: the first of a set of variations that will determine the visual identity of the building. The order of the corner of the exhibition rooms is maintained; the order of the corner of the ramps is metamorphosed. The original perimeter still remains materialized at the two other corners, determined by the opposite diagonal of the rectangle, which receives the two staircases of the building.
By maintaining the original perimeter of the building, the original position of the ramps and the original start and end points of the slopes, the only spatial-formal possibility for the ramps to achieve their needed extent is the irruption of outdoor and/or indoor ledges. The building materializes both possibilities. The original ramps are duplicated into new bifurcated ones: an external rectilinear one and an internal curvilinear one. Each flight of the ramps is formed by three segments: three linear segments in the first case and three arcs in the second. Each flight reaches the same height, the half of the difference between consecutive floors, two meters and seventy-five centimeters, and therefore has the same total length as the sum of the horizontal components of its slopes. Between the three curvilinear ramps and the three rectilinear ramps a brand new atrium rises: an outside and open one, whose ceiling is the very sky.
Connecting the floors is always a flight comprised of a curvilinear ramp and another comprised of a rectilinear one: the ascending or descending path intercalates both kinds of ramp. But visually each type is combined as creating a false continuity: inside, only the ascension of the three flights of curvilinear ramp is seen; outside, mainly the three flights of rectilinear ramp. The spatial reality of the building integrates; the formal reality isolates.
The new perimeter of the building is now materialized by a curve formed by a central convex arc and two side concave arcs connected by tangent lines. It emphasizes the trace of the curvilinear ramp, but slightly modifies it, in such a way that these ramps subtly appear in the façade. In front of and detached from this new curved surface, the visually continuous three flights of rectilinear ramp surround the open atrium. The curvilinear ramps separate inside and outside, they are the only elements that break the mainly orthogonal character of the building.
From a two-segment ramp surrounding a closed atrium, two three-segment ramps surrounding two atriums, a closed one and an opened one. That is the variation. From a prism, a rock. Thus is the materialization of the building.

Via ArchDaily
Fundación Iberê Camargo: Bases y Variaciones
Podría haber sido un prisma rectangular cuyo largo mide cuarenta y un metros y medio, cuyo ancho mide treinta y tres metros, y cuya altura mide veinticinco metros. Podría haber sido casi lo mismo: tres pisos elevados formados casa uno por tres salas rectangulares de exposiciones, dispuestas en dos caras consecutivas, conectadas por rampas que circulan por las dos otras caras. Así, un atrio de cuatro pisos de altura surge entre circulaciones y salas, creando una simetría diagonal en el interior del edificio.
Pero el edificio no es solo una regla. Es sobre todo la materialización de un conjunto de variaciones. Las rampas de la regla primaria, con una extensión de cuarenta y nueve metros y cincuenta y ocho centímetros dividida en dos segmentos perpendiculares en cada piso, de modo a alcanzar los cinco metros y medio de pie derecho necesitaría o una inclinación de once y un décimo por ciento o un aumento de trece metros y treinta y nueve centímetros en su extensión con una inclinación de ocho coma setenta y tres por ciento. Luego la opción obvia, la cual implica el primer conjunto de variaciones espacio-formales en el edificio, es por el aumento de la extensión de la rampa: el primer y aquel conjunto que irá determinar la identidad visual del edificio. El orden del canto de las salas de exposición es mantenida; el orden del canto de las rampas es metamorfoseado. El perímetros original todavía permanece materializado en los dos otros cantos determinados por la diagonal opuesta del rectángulo, que recibe las dos escaleras del edificio.
Manteniendo el perímetro original del edificio, la posición original de las rampas y los puntos inicial y final originales de las pendientes, la única posibilidad espacio-formal para las rampas alcanzar su necesaria extensión es la irrupción de salientes externos y/o internos. El edificio materializa a ambas posibilidades. Las rampas originales son duplicadas en nuevas rampas bifurcadas: una externa rectilínea y una interna curvilínea. Cada lance de las rampas es formado a partir de tres segmentos: tres arcos en el primer caso y tres segmentos de recta en el segundo. Cada lance atinge la misma altura, la mitad de un pie derecho, dos metros y setenta y cinco centímetros, y por tanto tiene el mismo largo total como soma de las componentes horizontales de sus pendientes. Entre as tres rampas curvilíneas e as tres rampas rectilíneas surge un nuevo atrio: un externo y abierto, cuyo techo es el propio cielo.
Conectando los pisos hay siempre un lance de rampa curvilínea y otro de rampa rectilínea: el recorrido de subida o bajada intercala a ambos los tipos de rampa. Pero visualmente cada tipo es agrupado como si creando una falsa continuidad: dentro está a la vista solamente la ascensión de los tres lances de rampa curvilínea; afuera, preponderantemente los tres lances de rampa rectilínea. La realidad espacial del edificio integra; la realidad formal aísla.
El nuevo perímetro del edificio es ahora materializado por una curva formada por un arco mayor central convexo y dos menores laterales cóncavos conectados por rectas tangentes. Él enfatiza el trazo de las rampas curvilíneas, pero la modifica ligeramente, de tal modo que estas rampas sutilmente aparecen en la fachada. En frente y desgarrados de esta nueva superficie curva os tres lances visualmente continuos de rampa rectilínea circundan el atrio abierto. Las rampas curvilíneas separan interior y exterior, ellas son el único elemento que rompe el carácter preponderantemente ortogonal del edificio.
A partir de una rampa en dos segmentos circundando un atrio cerrado, dos rampas de tres segmentos circundando dos atrios, un cerrado y un abierto. Esta es la variación. Desde un prisma, una roca. Así es la materialización del edificio.

Fundação Iberê Camargo: Bases e Variações
Poderia haver sido um prisma retangular cujo comprimento mede quarenta e um metros e meio, cuja largura mede trinta e três metros, e cuja altura mede vinte e cinco metros. Poderia haver sido quase o mesmo: três pavimentos elevados, formados cada um por três salas retangulares de exposições, dispostas em duas faces consecutivas, conectadas por rampas que circulam pelas duas outras faces. Assim, um átrio de quatro pavimentos de altura surge entre circulações e salas, criando uma simetria diagonal no interior do edifício.
Porém o edifício não é apenas uma regra. É sobretudo a materialização de um conjunto de variações. As rampas da regra primária, com uma extensão de quarenta e nove metros e cinquenta e oito centímetros dividida em dois segmentos perpendiculares em cada pavimento, de modo a alcançar os cinco metros e meio de pé-direito necessitaria ou uma inclinação de onze e um décimo porcento ou um aumento de treze metros e trinta e nove centímetros na sua extensão com uma inclinação de oito vírgula setenta e três porcento. Logo a opção óbvia, a qual implica o primeiro conjunto de variações espaço-formais no edifício, é pelo aumento da extensão da rampa: o primeiro e aquele conjunto que irá determinar a identidade visual do edifício. A ordem do canto das salas de exposição é mantida; a ordem do canto das rampas é metamorfoseada. O perímetro original ainda permanece materializado nos dois outros cantos determinados pela diagonal oposta do retângulo, que recebe as duas escadas do edifício.
Mantendo o perímetro original do edifício, a posição original das rampas e os pontos inicial e final originais das pendentes, a única possibilidade espaço-formal para as rampas alcançarem sua necessária extensão é a irrupção de saliências externas e/ou internas. O edifício materializa ambas possibilidade. As rampas originais são duplicadas em novas rampas bifurcadas: uma externa retilínea e uma interna curvilínea. Cada lance das rampas é formado a partir de três segmentos: três segmentos de reta no primeiro caso e três arcos no segundo. Cada lance atinge a mesma altura, a metade de um pé-direito, dois metros e setenta e cinco centímetros, e portanto tem o mesmo comprimento total como soma das componentes horizontais de suas pendentes. Entre as três rampas curvilíneas e as três rampas retilíneas surge um novo átrio: um externo e aberto, cujo teto é o próprio céu.
Conectando os pavimentos há sempre um lance de rampa curvilínea e outro de rampa retilínea: o percurso de subida ou descida intercala ambos os tipos de rampa. Porém visualmente cada tipo é agrupado como se criando uma falsa continuidade: dentro está à vista somente a ascensão dos três lances de rampa curvilínea; fora, preponderantemente os três lances de rampa retilínea. A realidade espacial do edifício integra; a realidade formal isola.
O novo perímetro do edifício é agora materializado por uma curva formada por um arco maior central convexo e dois arcos menores laterais côncavos conectados por retas tangentes. Ele enfatiza o traço das rampas curvilíneas, porém a modifica ligeiramente, de tal modo que essas rampas sutilmente aparecem na fachada. Em frente e desgarrados dessa nova superfície curva os três lances visualmente contínuos de rampa retilínea circundam o átrio aberto. As rampas curvilíneas separam interior e exterior, elas são o único elemento que rompe o caráter preponderantemente ortogonal do edifício.
A partir de uma rampa de dois segmentos circundando um átrio fechado, duas rampas de três segmentos circundando dois atrios, um fechado e um aberto. Essa é a variação. Desde um prisma, uma rocha. Assim é a materialização do edifício.

Via ArchDaily Brasil


Leave a comment